Welcome to Seoltech


Baramdorie(10kW)

Product features

  • Certificated of renewable energy equipment (10kW : First in the country)
  • Supplied to 1MW Wind Farm in Thailand
  • Secured stability of over wind speed
  • Rapid A/S as localization of design/production of technology (95% self-reliance)
  • Low maintenance
  • Supply comprehensive solutions related small wind power (aerodynamics,electro-machine, power conversion, communication, construction, etc)
  • Apply to annual average wind speed over 4.5m/s
  • Low noise, High efficiency, Energy saving

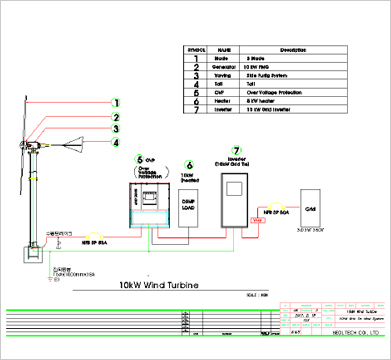
System configuration

Specifications

Rated Output 10kW
Rated Power 9m/s
Cut-in 2.5 m/s
Cut-Out 15 m/s
SWT Class
Number of Blade 3
Rotor Biameter 8.8m
Swept Area 60.79
Blade Material Fiberglass-reinforced epoxy
Twist Angle
Rated Speed 120 rpm
Over speed Control Side Furling+ E/B + Short Circuit
Yawing System Passive regulation by tail vane

Output curve

Annual Energy production

Certifications